Surat Kesepakatan Bersama

Surat Kesepakatan Bersama

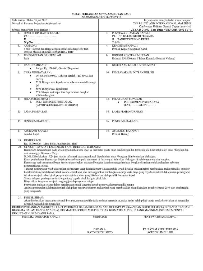
Surat Perjanjian

Surat Perjanjian

19 Contoh Surat Perintah Bongkar Kumpulan Contoh Surat

19 Contoh Surat Perintah Bongkar Kumpulan Contoh Surat

Contoh Surat Pembongkaran Bangunan

Contoh Surat Pembongkaran Bangunan

Contoh Perjanjian Guna Bangunan

Contoh Perjanjian Guna Bangunan

Doc Surat Persetujuan Pernyataan Pemakaian Tanah Atau Bangunan Tanah Dan Bangunan Muhammad Hunaffa Academia Edu

Doc Surat Persetujuan Pernyataan Pemakaian Tanah Atau Bangunan Tanah Dan Bangunan Muhammad Hunaffa Academia Edu

Doc Surat Persetujuan Pernyataan Pemakaian Tanah Atau Bangunan Tanah Dan Bangunan Muhammad Hunaffa Academia Edu

Demikianlah 2 Contoh Surat Kontrak Perjanjian PembangunanUntuk mendapatkan contoh lain bentuk surat perjanjian yang sesuai dengan kebutuhan Anda silahkan lihat kumpulan contoh surat perjanjian kami yang lain dalam kategori Surat Perjanjian.

Contoh surat perjanjian pembongkaran bangunan. Tidak semua orang memahami apa itu berita acara dan tahu bagaimana cara membuatnya. PRINSIP TAAWUN DALAM KONSEP WAKAF DENGAN PERJANJIAN SEWA MENYEWA BERDASARKAN UNDANG-UNDANG NOMOR 41 TAHUN 2004 TENTANG WAKAF. Download surat perjanjian jual beli tanah dan bangunan.

Contoh berita acara pembongkaran bangunan tips memulai bisnis properti kebutuhan sesuaikanlah model bangunan yang akan anda buat dengan kebutuhan dan lokasi tempat anda membuat bangunan tersebut. Inilah jasa desain rumah dengan biaya murah di wilayah Gedung Meneng Tulang Bawang dan sekitarnya yang bisa Anda gunakan jika ingin membangun rumah baru atau merenovasi rumah lama Anda. Demikian Surat Perjanjian ini dibuat rangkap 2 dua masing-masing bermaterai cukup yang mempunyai kekuatan hukum yang sama yang dipegang oleh masing-masing pihak dan berlaku sejak ditanda tangani Surat Perjanjian ini.

CONTOH SURAT IJIN PEMBONGKARAN PEMERINTAH KABUPATEN BANYUMAS. Contoh surat perjanjian membangunan bangunan ini selain bisa digunakan untuk rumah tinggal juga bisa digunakan untuk tempat usaha. By Jurnal Hukum Magnum Opus.

7 Contoh Surat Perjanjian Jual Beli Rumah Tanah Dan Bangunan Di 2020 Surat Tanah Pekerja Rumah Tangga. Surat perjanjian biasanya ditulis sebagai bukti bahwa telah berlangsungnya perjanjian antara pihak satu dengan pihak lainnya baik dalam melakukan kerjasama kontrak kerja penyewaan barang atau lain hal. Seperti surat pada umumnya ada beberapa spesifikasi.

Ada banyak contoh surat perjanjian kontrak namun kali ini akan berfokus pada aplikasinya di ranah kontrak tanah dan bangunan. Kumpulan Contoh Surat Perjanjian Sewa Rumah. Sehubungan dengan kondisi bangunan yang rusak berat danatau membahayakan lingkungan sekitar serta telah tersedia anggaran pengganti sehingga harus dilakukan pembongkaran bangunan agar dapat dilakukan rehab gedung.

Sehubungan dengan hal tersebut dengan ini kami mengajukan. Untuk pekerjaan tersebut diatas dibuat perjanjian tambahan addendum. Pasal 7 Perubahan Apabila pada waktu pengerjaan pelaksanaan konstruksi terdapat perubahan perubahan terhadap luasan posisi dan bentuk serta penambahan material bangunan diluar dari perjanjian yang telah disepakati oleh kedua belah Pihak maka Pihak Kedua wajib membayar setiap perubahan pembongkaran dan pemasangan kembali yakni sebesar Rp.

Surat Perjanjian Kerja Riders Kla

Surat Perjanjian Kerja Riders Kla

Permohonan Bongkar Gedung

Permohonan Bongkar Gedung

Contoh Surat Jaminan Aset Contoh Surat

Contoh Surat Jaminan Aset Contoh Surat

Contoh Surat Izin Pembangunan Jembatan

Contoh Surat Izin Pembangunan Jembatan

Contoh Surat Perjanjian Adopsi Anak Diluar Nikah Gudang Surat

Contoh Surat Perjanjian Adopsi Anak Diluar Nikah Gudang Surat

Contoh Surat Pernyataan Penghapusan Aset Gedung Gawe Cv

Contoh Surat Pernyataan Penghapusan Aset Gedung Gawe Cv

15 Contoh Surat Berita Acara Pembongkaran Gedung

15 Contoh Surat Berita Acara Pembongkaran Gedung

Contoh Surat Gugatan Ptun Tentang Pembongkaran Bangunan Gudang Surat Cute766

Contoh Surat Gugatan Ptun Tentang Pembongkaran Bangunan Gudang Surat Cute766

Surat Imb

Surat Imb

Contoh Surat Pernyataan Aset Negara Gawe Cv Cute766

Contoh Surat Pernyataan Aset Negara Gawe Cv Cute766

Contoh Surat Berita Acara Penghapusan Piutang Tak Tertagih Surat 29

Contoh Surat Berita Acara Penghapusan Piutang Tak Tertagih Surat 29

Contoh Surat Perjanjian Bongkar Muat Barang Contoh Seputar Surat

Contoh Surat Perjanjian Bongkar Muat Barang Contoh Seputar Surat

Spk Pembongkaran Unit Staging High Grade Centrifugal Pg Kbii

Spk Pembongkaran Unit Staging High Grade Centrifugal Pg Kbii

Contoh Surat Pernyataan Kesanggupan Mentaati Peraturan Perusahaan Ini Aturannya

Contoh Surat Pernyataan Kesanggupan Mentaati Peraturan Perusahaan Ini Aturannya

Source : pinterest.com